string(3) "481"

Батарейный циклон БЦ-259-(6x4) в Благовещенске

Версия
для печати
В наличии на складе Цена в рублях с НДС 995 000
Получите скидку
у менеджера
Цена на батарейный циклон БЦ-259-(6x4) с доставкой от 995 000 рублей с НДС
Производительность циклона, м³/с4.44
ПрименяемостьПаропроизводительность 6.5 т/ч
Доставка ТК в г. Благовещенск и по России
Безналичный расчет
Опросный лист
Опросный лист
  • Технические
    характеристики
  • Описание
    товара
  • Сертификаты и
    гарантии
  • Отзывы о
    продукции
  • Видео
    обзор

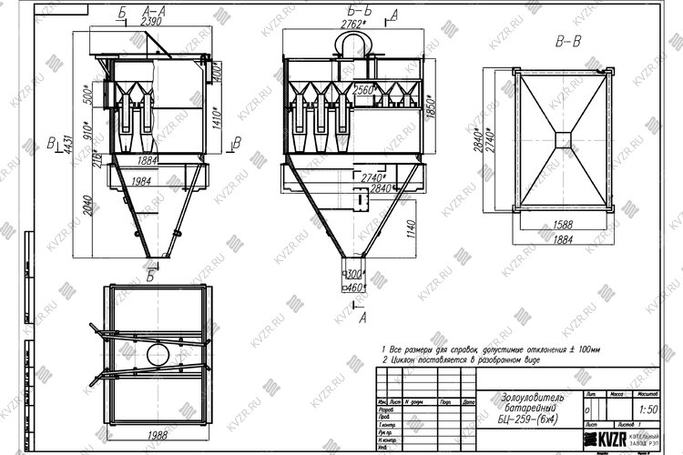
Технические характеристики батарейного циклона БЦ-259-(6x4)

Масса, кг 4970
Количество элементов, шт 24
Производительность циклона, м³/с 4.44
Внутренний диаметр циклонного элемента, мм 259
Степень очистки газов, % 90
Допустимая температура газов на входе до, °С 400
Марка БЦ 259-(6x4)
Вид Циклон БЦ 259
Применяемость Паропроизводительность 6.5 т/ч
Тип циклона Циклон БЦ 259, Батарейный
Габаритные размеры: длина*ширина*высота, мм 2320*2770*4440
Бренд KVZR

Батарейные циклоны БЦ-259-(6×4) в Благовещенске

Батарейные циклоны БЦ 259 (6×4) используются как пылеуловители для очистки воздуха от неслипающихся и неволокнистых пылевых частиц образующихся при сжигании твердого топлива в водогрейных и паровых котлах. Модель, представленная на нашем сайте, комплектуется из 24 параллельно установленных циклонных элементов.

Пример условного обозначения

БЦ-259-(6х4), где

  • БЦ – батарейный циклон;
  • 259 – диаметр циклонного элемента;
  • 6 – количество секций;
  • 4 – число рядов;
  • (6х4) – количество элементов в секции.

Циклон БЦ 259 (6×4) конструкция

Конструктивно циклон БЦ 259-(6×4) состоит из следующих основных частей:

  • элементы пылеуловителя;
  • трубная доска;
  • кожух;
  • верхняя панель;
  • фланцы;
  • шибер;
  • бункер - накопитель.

Батарейные циклоны БЦ-259-(6×4) представляют собой пылеулавливающие аппараты, составленные из большого количества параллельно установленных элементов, объединенных в одном корпусе и имеющих общие подвод и отвод газов, а также сборный бункер.

Корпус циклона БЦ 259-(6×4) выполняется из несколько параллельно работающих секций. При переменных нагрузках сохранение оптимальной скорости движения газов в элементах осуществляется путем отключения соответствующих секций с помощью шибера. Секционирование уменьшает возможность ухудшения степени очистки газов за счет их перетока из одних элементов в другие через пылевой бункер. На крышке устанавливается предохранительный клапан.

Принцип работы батарейного циклона БЦ 259 (6×4)

Запыленный газ равномерным потоком направляется в секции агрегата. С помощью лопаток завихрителя запыленный газ отделяется от общего потока и поступает в элементы. Золовые частицы спускаются по стенкам аппарата в пылевой бункер. В центре циклона спирально-вихревое движение газов образует зону пониженного давления, куда устремляется очищенный от золы воздух. Очищенный воздух двигаясь в противоположную сторону направляется в выхлопную трубу элемента. Из выхлопных труб очищенный от пыли воздух через дымосос отправляется в атмосферу.

Технические характеристики

МаркаНаименование элементаКоличество элементов в изделииМаксимальный расход газа, м3/с
БЦ-259-(6×4)Т 323.01.01.00064.44
Т 323.01.01-016
Т 323.01.01-026
Т 323.01.01-036

Монтаж

  • агрегат устанавливается по газовому тракту перед дымососом;
  • для того чтобы избежать резкие перепады температуры, в результате которой образуется конденсат, пылеуловитель рекомендуется устанавливать внутри помещения;
  • при установке пылеулавливающего устройства обеспечивается беспрепятственная выгрузка золы из бункера;
  • при монтаже газового тракта не допускаются резкие перегибы газоходов, резкие сужения или расширения, что ведет к существенным искажениям пылегазового потока, образованию завалов и возрастанию аэродинамического сопротивления газового тракта;
  • при размещении золоуловителя вне помещения необходимо провести теплоизоляцию корпуса и бункера-накопителя.

Купить батарейный циклон БЦ-259-(6×4)

Для того чтобы купить циклон БЦ 259-(6×4) в Благовещенске вы можете сделать заявку в отдел сбыта по телефону (38-52) 29-97-41 (42), либо оформить заказ онлайн. Наши менеджеры дадут консультацию и рассчитают стоимость доставки до вашего региона и населенного пункта.

Дополнительные услуги

Сертификат и качество батарейного циклона БЦ-259-(6x4)

Циклоны и золоуловители производства Котельный завод "РЭП" соответствуют строгим стандартам качества и безопасности.

Циклоны имеют декларацию соответствия Техническим регламентам Таможенного союза ТР ТС 010/2011 «О безопасности машин и оборудования».

Промышленный батарейный циклон БЦ-259-(6x4) включен в реестр российских производителей промышленного оборудования Минпромторг и имеют реестровую запись номер № 10729654 от 14.10.2025, сроком действия до 13.10.2028 подтверждающую российское происхождение продукции.

Промышленный батарейный циклон БЦ-259-(6x4) имеет гарантийный срок 24 месяца и срок работы при соблюдении правил монтажа и эксплуатации оборудования 10 лет.

Сертификат для золоуловителей .jpg
Сертификат на золоуловители
Сертификат о происхождении товара форма СТ-1 .jpeg
Сертификат о происхождении товара (форма СТ-1)

Отзывы о продукции

Отзыва о товаре пока нет, будьте первыми!

Батарейные циклоны БЦ-259-(6×4) используются как пылеуловители для очистки воздуха от неслипающихся и неволокнистых пылевых частиц образующихся при сжигании твердого топлива в водогрейных и паровых котлах. Модель представленная на нашем сайте комплектуется из 24 параллельно установленных циклонных элементов.

Смотреть видеообзор на

Вопрос-ответ

  • Технические
    характеристики
  • Описание
    товара
  • Сертификаты и
    гарантии
  • Отзывы о
    продукции
  • Видео
    обзор
Документы завода
  • Сертификаты завода
  • Членство в СРО
  • Аттестованная технология сварки
  • Патенты на котельное оборудование
  • Товарные знаки
Смотреть все документы
Сертификат на водогрейные котлы на твердом и жидком топливе
Сертификат на водогрейные котлы на газе и жидком топливе
Сертификат на котлы отопительные паровые КП
Сертификат на топки
Сертификат на щиты управления
Сертификат на скиповые подъемники
Сертификат на золоуловители (циклоны)
Сертификат на конвейеры скребковые
Сертификат на дробилки
Сертификат на клапаны предохранительные
Сертификат на бункер-накопитель механизированный
Сертификат на автоматику газовых горелок
Сертификат о происхождении товара форма СТ-1
Членство в СРО
Членство в СРО
Аттестованная технология сварки
Свидетельство аттестованной технологии сварки
Патент на отопительный котел
Патент на водогрейный котел
Патент на топку водогрейного котла
Патент на водогрейный газовый котел
Патент на водогрейный котел
Патент на топочное устройство твердотопливного котла
Патент на водогрейный котел
HEATEXPERT товарный знак
KVZR товарный знак
STEAMEXPERT товарный знак
Другая похожая продукция
Циклон ЦБ
ПрименяемостьКотел ДКВр-10-13; КЕ-10-14С
Производительность циклона, м³/ч23000-36000
1 346 000 р. Цена с НДС
Батарейный циклон БЦ 2
Производительность циклона, м³/с11.72-13.58
ПрименяемостьКотлы мощностью 10 - 12 МВт, котлы паропроизводительностью 16 т/ч
2 282 000 р. Цена с НДС
Батарейный циклон БЦ 259
Производительность циклона, м³/с3.69
ПрименяемостьПаропроизводительность 4.0 т/ч
Цена по запросу
Батарейный циклон БЦ 259
Производительность циклона, м³/с5.55
ПрименяемостьПаропроизводительность 6.5 т/ч
Цена по запросу
Вы просматривали эти товары
Батарейный циклон БЦ 259
Производительность циклона, м³/с4.44
ПрименяемостьПаропроизводительность 6.5 т/ч
995 000 р. Цена с НДС
Циклон ЦН-15-1-УП
Производительность циклона, м³/ч5725-9155
174 000 р. Цена с НДС
Котел 150 кВт угольный
Вид топкиРучная, Колосники
Максимальная тепловая мощность, кВт150
ТопливоТвердое, Уголь
Отапливаемая площадь, м²860-1600
339 000 р. Цена с НДС
Циклон СК ЦН 34
Внутренний диаметр корпуса циклона ЦН, мм400
Производительность циклона, м³/ч680-1580
29 000 р. Цена с НДС
background